
IDEAL 7000 PVC okna i drzwi.
Nowy wymiar energooszczędności.

Aluplast IDEAL 7000 PVC Drzwi - Opis systemu
Seria profili systemowych IDEAL 7000 PVC otwiera nowe możliwości w zakresie produkcji drzwi wejściowych.
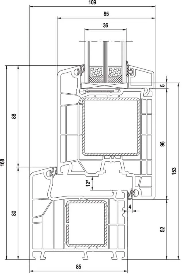
Drzwi wejściowe IDEAL 7000 charakteryzują się bardzo dobrymi parametrami termoizolacyjnymi i są kompatybilne z profilami z serii IDEAL 7000 i IDEAL 8000. Dzięki wielokomorowej konstrukcji i głębokości profili 85 mm oraz zastosowaniu progu drzwiowego z przekładką termiczną, parametry termiczne drzwi uległy znacznej poprawie, a wartość Uf sięga 1,2 W/m2 K.
W tych nowych profilach możliwe jest zastosowanie szyb zespolonych i wypełnień o szerokości do 50 mm.
Niski próg o wysokości 20 mm spełnia wymagania dla budownictwa bez barier architektonicznych i umożliwia łatwe wejście i wyjście.
Drzwi wejściowe IDEAL 7000 swoim specjalnym kształtem pozwalają na łączenie z dodatkowymi profilami systemowymi, takimi jak nadstawki. Szeroki aluminiowy okapnik skutecznie odprowadza wodę na zewnątrz.
System dostępny jest na białym, brązowym i antracytowym rdzeniu.


Aluplast IDEAL 7000 PVC Okno - Opis systemu
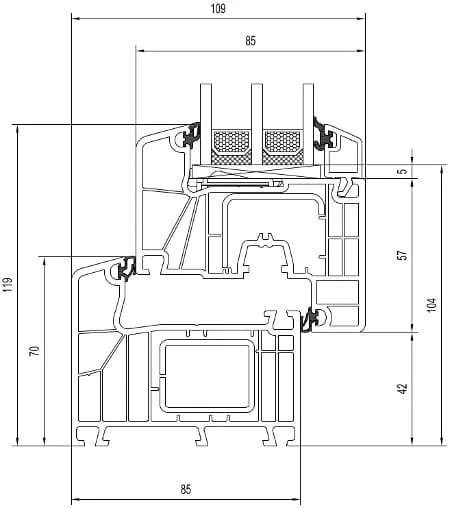
System IDEAL 7000 uPVC jest przykładem synergicznego wykorzystania właściwości profili i szyb zespolonych do tworzenia okien o bardzo niskiej przepuszczalności cieplnej. Uzyskany współczynnik przenikania ciepła profili o współczynniku Uf = 1,1-1,0 W/m2K w połączeniu z możliwością zastosowania szerszych i cieplejszych pakietów szybowych o szerokości do 51 mm gwarantuje najlepsze parametry termiczne okna.
Jest to system z uszczelką zewnętrzną, co daje możliwość zaoferowania energooszczędnego rozwiązania również dla konstrukcji szklanych, bez konieczności stosowania adapterów. Duża komora z pełnym wzmocnieniem stalowym gwarantuje stabilność ramy. System pozwala na swobodne łączenie ram z innymi seriami profili o głębokości 85 mm.
Seria Ideal 7000 to system wielofunkcyjny, wykorzystujący technologię MULTIFALZ, czyli opcjonalną możliwość zastosowania technologii wklejania szyb w profile. Dzięki nowej geometrii nacięcia szyby możliwe jest nie tylko szklenie konwencjonalne, ale również klejenie w oknach. Technologie te mogą być stosowane naprzemiennie lub łączone w zależności od potrzeb. Przykładowo, można poprawić właściwości termiczne konstrukcji poprzez wyeliminowanie wzmocnień stalowych i klejenia okien, lub zastosować większe okna, kolory itp. używając wzmocnień stalowych jak i technologię wklejenia szkła.
Opcjonalne zastosowanie technologii wklejania szyb pozwala na uzyskanie jeszcze bardziej stabilnych i bezpieczniejszych okien. Dzięki trwałemu zespoleniu szyby i skrzydła zmniejsza się ryzyko wygięcia, skręcenia i obwisłości skrzydła, wydłużając tym samym żywotność skrzydeł bez konieczności ich regulacji.


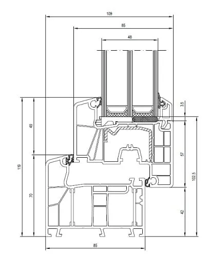
Aluplast IDEAL 7000 PVC Okno „Powerdur Inside” - Opis systemu
„Powerdur inside” to innowacyjna technologia koekstruzji profili pvc z wykorzystaniem specjalnych wkładów termoplastycznych wzmocnionych włóknem szklanym ultradur® High Speed, opracowana we współpracy z BASF.
IDEAL 7000 „powerdur” jest doskonałym przykładem rozwiązania „hybrydowego”, w którym z jednej strony zwiększamy głębokość profili do 85 mm, zwiększamy liczbę komór, umożliwiamy szklenie energooszczędnych pakietów do szerokości 51 mm, a z drugiej eliminujemy wzmocnienia stalowe, które negatywnie wpływają na termiczne właściwości konstrukcji. Wzmocnienie z włókna szklanego zastępuje stal stosowaną w konwencjonalnych ramach okiennych z PVC, które zapewnia znacznie lepsze właściwości termoizolacyjne przy zachowaniu tych samych właściwości mechanicznych okna.
Dzięki wyeliminowaniu wzmocnień stalowych w profilach serii IDEAL 7000 „powerdur inside”, mostki termiczne są ograniczone, a współczynnik przenikania ciepła ram dla tej serii wynosi Uf=1,0W/m2K, co jest bardzo dobrym wynikiem dla systemu z uszczelnieniem zewnętrznym. Jednocześnie konstrukcja profili daje możliwość dalszej poprawy przepuszczalności cieplnej profili, poprzez opcjonalne wypełnienie przestrzeni niektórych komór wewnętrznych materiałem termoizolacyjnym.




