
Okna i drzwi aluminiowe Star GT z Uf od 0,73 W/m2K

Star GT aluminiowe okna i drzwi - opis systemu
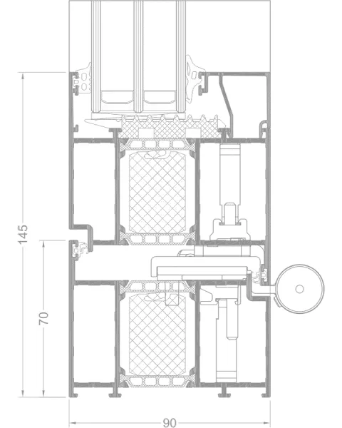
Nowoczesny system aluminiowy do projektowania okien i drzwi wymagających bardzo dobrej izolacji termicznej. Separator termiczny o głębokości 45 mm, wykonany z solidnych i sprawdzonych materiałów, stanowi skuteczną barierę termiczną. Ten sam typ wkładki izolacyjnej w skrzydle okna i w ościeżnicy zapewnia stałą ochronę przed stratami ciepła całej konstrukcji.
Jest to nowy standard profili i szyb o zwiększonej głębokości, który poprawia właściwości termiczne i strukturę systemu.
Zastosowano również nowy typ kształtownika narożnikowego, który zapobiega kolizji wkrętu z narożnikiem podczas wkręcania elementów okucia powierzchniowego pod rowkiem PCV. System posiada możliwość dodawania okuć zawiasów rolkowych o bardzo dużej nośności.
Ponadto korzystamy z innowacyjnego systemu odwadniania, w którym nie ma widocznych elementów zatrzymujących odpływy wody.
Możliwość gięcia profili (szczegółowa specyfikacja profili oraz szczegółowe parametry techniczne procesu gięcia profili dostępne są w strefie klienta na stronie www.aliplast.pl).
System ten jest szczególnie polecany w przypadku budynków o niskim zużyciu energii i izolacji termicznej, a także poprawia komfort cieplny w obiektach standardowych.
Dostępna jest szeroka gama kolorystyczna – paleta RAL, kolory strukturalne, Aliplast Wood Colour Effect, dwukolorowy.


Star GT - specyfikacja
| System | Windows | Doors |
|---|---|---|
| Thermal insulation | Uf from 0,73 W/m²k | Uf from 1,21 W/m²k |
| Air permeability | Class 4; EN 12207 | Class 4; EN 12207 |
| Windload resistance | Class C4 1600Pa; EN 12210 | Class C4 1600Pa; EN 12210 |
| Watertightness | Class E900; EN 12208 | Class E900; EN 12208 |
| Material | aluminium/thermal insulation | aluminium/thermal insulation |
| Depth of frame | 90 mm | 90 mm |
| Depth of leaf | 99 mm | 99 mm |
| Glazing range | Fixed 14-72 mm; RU 23-81 mm | 14-72 mm |
| Type of windows/doors | wall, fixed, tilt and turn | single and French door, inward and outward opening |
| *Thermal insulation is dependent on a combination of profiles and thickness of the filling. | ||
