
uPVC windows
The highest quality uPVC windows have been constructed in such a way that so that all elements work on the energy efficiency of the house.

All window models combine modern and safe solutions with uncompromising aesthetics. Elegant and durable, they have very favourable thermal and acoustic insulation coefficients.
Thanks to functional accessories, you can easily adjust your windows and terrace doors to your own requirements.
Remember about the possibility of making windows in a uniform colour and the possibility of one-sided or double-sided veneering, as well as Bi-colour.
FEN 92 | FEN 82 | FEN 76
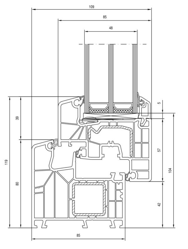
FEN 92
PREMIUM CLASS WINDOWS
The warmest model of windows, ideally meeting the requirements of energy-saving construction (Uw = 0.76 W / (m2K)). *
Although they are suitable for glazing up to 48 mm thick, we managed to give them an elegant look. High resistance to weather conditions ensures that the windows will always look like new.
Profile depth up to 92 mm, a triple system of pressure gaskets, a warm spacer and increased stability of the structure. There are many more advantages, ask the Advisor for details.
A wide selection of additional equipment, the possibility of making windows in unusual shapes and veneering in the Bi-color option guarantees matching to the interior design and the facade.
FEN 92 windows can be ordered in an anti-burglary option with increased resistance to burglary in classes RC1, RC2, RC2N. It is one of the few windows on the Polish market certified in RC classes.

* Applies to a reference window with dimensions of 1230 × 1480 mm
PRODUCT DESCRIPTION
PROFILES:
- 6-chamber system with steel reinforcements at least 1.5 mm thick
- 92 mm profile depth
- class A profiles (thickness of the visible walls of the profile minimum 2.8mm)
- triple system of pressure gaskets (middle seal – MD) made of thermoplastic TPE material in black
(or optionally gray) - anti-dust plug in the color of the frame core as standard
- closed steel profile in the frame
- standard color: white
- veneered profiles with white and brown cores
FILLING
- low-emission composite glass 4 * / 14/4/14 / * 4 Ug = 0.6 [W / m2K], aluminum frame
HARDWARE
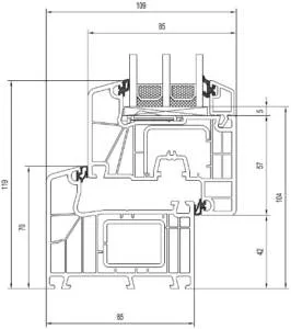
FEN 82
ENERGY SAVING IN GOOD STYLE
FEN 82 windows are a combination of the optimal structure of frames and sashes, a well-thought-out system of gaskets and 3-pane, energy-saving packages, which allow for a significant reduction of heat loss and achieve the Uw = 0.72 W / m²K coefficient. This makes FEN 82 windows perfect for energy-saving houses and those built with future savings in mind.
A wide range of accessories and a rich color palette allow you to adjust the window to the needs and expectations of each investor.
The FEN 82 window system is a stable structure with good acoustic insulation. In our windows, we use energy-saving triple glazing units with a glazing thickness of up to 48 mm and the possibility of using ECLAZ low-emission panes.
This is the first window model in the offer where the veneer and the core can be made in a consistent anthracite shade.

* Applies to a reference window with dimensions of 1230 × 1480 mm
PRODUCT DESCRIPTION
PROFILES:
- 6-chamber system with steel reinforcements at least 1.5 mm thick
- 82 mm profile depth
- triple system of pressure gaskets (middle seal – MD) made of thermoplastic TPE material in black
(or optionally gray) - anti-dust plug in the color of the frame core as standard
- closed steel profile in the frame
- standard color: white
- veneered profiles with white, brown and anthracite cores
FILLING
- low-emission composite glass 4 * / 16/4/16 / * 4 Ug = 0.6 [W / m2K], aluminum frame
HARDWARE
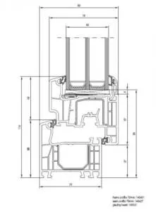
FEN 76
THE WARMEST WINDOWS IN ITS CLASS
FEN 76 5S windows with a classic, simple form, also available in the FEN 76 5R version – with a sash with a rounded profile.
The wide 5-chamber profile allows to achieve a very low heat transfer coefficient and are used in energy-saving houses.
Remember about the possibility of making windows in unusual shapes and veneering them in the Bi-color option.
FEN 76 windows can be ordered in an anti-burglary option with increased resistance to burglary in RC1, RC2, RC2N classes. It is one of the few windows on the Polish market certified in RC classes. The best value for money.

* Applies to a reference window with dimensions of 1230 × 1480 mm
PRODUCT DESCRIPTION
PROFILES:
- 5-chamber system with steel reinforcements minimum 1.5 mm thick
- 76 mm depth of the frame and sash profile
- double system of pressure seals made of thermoplastic TPE material in black(or optionally gray)
- anti-dust plug in the color of the frame core as standard
- closed steel profile in the frame
- standard color: white
- available in white version with aluminum covers on the outside, also in RAL colours
- veneered profiles with white and brown cores
FILLING
- low-emission composite glass 4/16 / * 4 Ug = 1.0 [W / m2K] (acc. To EN 674), aluminum frame
HARDWARE
- Winkhaus ActivPilot Concept Basic

SYSTEM COMPARISON
| STANDARDS | ADVANTAGES | FEN 76 5S | FEN 76 5R | FEN 82 | FEN 92 | FEN 86 ALU |
|---|---|---|---|---|---|---|
| 5-year warranty | quality, safety | ✔ | ✔ | ✔ | ✔ | ✔ |
| CE documentation | reliable producer | ✔ | ✔ | ✔ | ✔ | ✔ |
| under-sill strip with double seal | tightness, correct assembly | ✔ | ✔ | ✔ | ✔ | - |
| anti-dust seal in the color of the base | aesthetics | ✔ | ✔ | ✔ | ✔ | - |
| anti-theft hooks screwed to steel | peace of mind guaranteed | ✔ | ✔ | ✔ | ✔ | - |
| closed reinforcement in the frame | stability, security, statics | ✔ | ✔ | ✔ | ✔ | - |
| posts screwed to steel | stability, security, statics | ✔ | ✔ | ✔ | ✔ | - |
| profile class | stability, security, statics | B | B | B | A | - |
| system depth [mm] | energy performance | 76 | 76 (leaf 82) | 82 | 92 | 77 (leaf 86) |
| number of chambers | energy performance | 5 | 5 | 6 | 6 | 3 |
| Uf value | energy performance | 1,2 | 1,2 | 0,98 | 1,0 | - |
| type of seal | energy performance | AD | AD | MD | MD | MD |
| frame + sash height [mm] | energy performance | 120 | 120 | 123 | 118 | 103 |
| glazing package | energy performance | up to 44 mm | up to 44 mm | up to 48 mm | up to 48 mm | up to 60 mm |
| Uw value (for 1230x1480 mm window) | functional properties of windows | 0,89 (Ug=0,6) | 0,89 (Ug=0,6) | 0,76 (Ug=0,5) | 0,76 (Ug=0,5) | 0,89 (Ug=0,5) |
| windload resistance | functional properties of windows | C4 | C4 | C4 | C4/B4 | C5 |
| watertightness | functional properties of windows | 9A | 9A | 9A | E1050 | E1500 |
| dangerous substances | functional properties of windows | do not contain | do not contain | do not contain | do not contain | do not contain |
| sound insulation Rw (C, Ctr) dB | functional properties of windows | 34 (4/16/4/16/4) | 34 (4/16/4/16/4) | 34 | 35 (4/14/4/14/4) | - |
| air permeability | functional properties of windows | 4 | 4 | 4 | 4 | 4 |


IDEAL 8000 | IDEAL 7000 | IDEAL 4000 | BLOCKPROFILE | HST 85 MM
IDEAL 8000
Aluplast IDEAL 8000 is a perfect proposition for everyone who expects an apartment’s comfort at the highest level.
The IDEAL 8000 window system is a combination of state-of-the-art technical solutions to obtain above-average properties, guaranteeing warmth, silence, security and unique aesthetics of the window. Choosing IDEAL 8000 window system, you choose a top-shelf product in which the quality of the profiles and the materials used are not subject to compromises. The well-thought-out design and profile geometry, combined with available technologies, ensure excellent statics, long-term window function retention and trouble-free operation.
Creating window constructions with low thermal permeability is not only a fashion and interesting fact, it is the lasting and long-term direction of window development techniques. IDEAL 8000 system fits perfectly in this way of seeking thermal energy savings by increasing the depth of profiles and the number of internal chambers and the implementation of new glazing technology for window wings.
System is available in white, brown and anthracite core.
IDEAL 7000
IDEAL 7000 uPVC system is an example of the synergistic use of the properties of profiles and composite double glazing to create windows characterized by very low thermal transmittance. The thermal permeability coefficient of profiles obtained with Uf = 1.1-1.0 W/m2K combined with the possibility of using wider and warmer glass packages of up to 51 mm wide guarantees the best thermal parameters of the window.
Ideal 7000 series is a multifunctional system, using MULTIFALZ technology, i.e. an optional possibility of applying bonded glued glass technology. Thanks to the new geometry of the glazing notch, not only conventional glazing is possible but also gluing in the windows. These technologies can be used alternately or combined depending on the needs. For example, it is possible to improve the thermal properties of the structure by eliminating steel reinforcements and gluing windows, or applying larger windows, colors, etc., both by reinforcement with steel reinforcements and glass bonding technology.
The optional use of window glass insertion technology allows for even more stable windows. Thanks to the permanent bonding of the pane and the wing, the risk of bending, twisting and sagging of the wing is reduced, thus extending the life of the wings without the need to adjust them.
IDEAL 4000
The IDEAL 4000 profile series combines the latest technology with the highest comfort of living. Strong profile construction and large chambers for steel reinforcements guarantee optimal static parameters and allow the construction of large windows. The multi-chamber construction ensures high thermal and acoustic insulation. Original and harmonious design, combined with a large choice of system solutions, give unlimited possibilities to create windows and thus emphasize your own style. The universal IDEAL 4000 system works great both in the modern architecture of single and multi-family housing, as well as in the case of renovation.
IDEAL 4000 is both attractive in appearance and effective in application. The fully squareline profiles and matching glazing beads result in windows and doors with classic styling and tremendous appeal for customers. The system boasts many advanced design features, enabling simple and economic fabrication and installation.
Specification
- thermal insulation value of the standard combinations Uf = 1.3 W/m²K
- glazing thickness up to 41 mm
- outstanding sound insulation up to sound transmission class IV (45 dB)
- double design variety in the sash (recessed | semi-recessed)
- different profile shapes for an individual design
- design glazing bead for the inside
- concealed drainage is possible
- 5-chamber profile in the standard combination
- circumferential backstop gasket in the frame and sash
- special security hardware guarantees the highest level of burglary protection.
- backstop gasket system available in countless decor finishes
- available in white, cream, brown and anthracite core
BLOCKPROFILE
The system designed for the Dutch market and as it provides the different installation options. It can be obtained with two types of frames, with or without exterior rebate.
Steel reinforcements with large dimensions allow for the construction of large windows, while maintaining static requirements. Very wide window frames equipped with external rebates allow for easy and aesthetic installation of windows in a building made of clinker face brick without need of additional masonry treatment.
Specification
- a frame depth: 120 mm
- a sash depth: 70 mm
- a 3-chamber frame structure
- a 5-chamber sash structure
- hardware with microventilation as standard
- the 2-gaskets system,
- white and cream cores
- a possibility to use glazed units up to 36 mm in width,
standard glazing package 4/16Ar/4th Ug=1,1
HST 85 MM
An ideal solution for those who want a comfortable combination of the interior and terrace and the panoramic view achieved thanks to a large glazed area is the use of the lift and slide doors. Special fittings mechanisms allow you to move huge wings using minimum force. Turning the big handle down, from the closed position, raises the wing by a few millimeters, releasing the pressure of the gaskets and the enabling you to move the wings freely.
An unquestionable advantage of this type of patio doors are the possible dimensions of its construction. The width of the wing can be from 0.8 m to 3 m wide and up to 2.7 m high in white color, which allows you to create even a more than six-meter glazing.
Changes in the construction of sections have allowed for a significant improvement in thermal permeability of profiles, which depending on the chosen option allows to obtain an average value of the heat transfer coefficient Uf = from 1.5 W (m2 * K) in the Basic version, through Uf = 1.3 W (m2 * K) in the Standard version up to Uf = 1.1 W (m2 * K) in the Premium version. Despite their huge size, Lift slide doors remain an effective barrier against the escape of heat.
System is available in white, brown, cream and anthracite core.


uPVC windows – characteristics
uPVC windows are currently the most frequently chosen option, both for new homes and when replacing old windows with new ones. They are universal and have a classic look. They have many applications, uPVC balcony windows or uPVC roof windows can be found in almost every home.
The construction of uPVC windows is quite simple. The frames consist of a system of profiles and gaskets. Aimwin, focusing on quality, offers triple-glazed windows. The energy efficiency of the window mainly depends on it. Uw, ie the heat transfer coefficient of the offered windows, can be as high as 0.76 [W / m2K]. These parameters meet the conditions of energy-efficient and passive houses. uPVC windows are resistant to weather conditions, thanks to which they retain their aesthetic values for a long time. The wide range of colors of uPVC windows (e.g. brown uPVC windows) makes them easy to adjust to the facade. In addition to rich colors, uPVC windows can also be veneered.
uPVC windows – new solutions
New solutions in the production of uPVC windows relate primarily to safety. Fittings certified for burglary resistance have been introduced. Additionally, good uPVC windows are equipped with elements such as:
Anti-burglary catch
Reed switch
These are window opening sensors that can be part of the alarm system. They constitute an effective and discreet protection against “uninvited guests”. The most modern reed switches are integrated with the perimeter hardware, so they can signal its every movement, e.g. a turn of the handle.
They also perform other useful functions – for example, they can turn off the heating when the window is unsealed or opened.
Tilt first handle
The security consists in equipping the window with a special handle and using the reverse order of opening: tilting before opening.
After turning the handle by 90 degrees, the mechanism locks the window sash in the tilted position, preventing its opening. Only turning the key in the handle releases the lock and allows the window to be opened.
Secustic handle
Each turn of the handle causes precise shifting of the locking shafts to subsequent positions on the circumference of the housing. It is accompanied by a characteristic click confirming that the security function is active.
The patented locking mechanism prevents tampering with the Secustik handle and opening the window from the outside, protecting it against burglary.
Anti-burglary SecuForte handle
Handles with SecuForte technology can only be operated from the inside and only by pressing the handle of the handle towards the rosette. As long as the handle is detached from the spindle, it is almost impossible to move from the outside – even in the tilt position.
This means that the SecuForte window handles effectively protect against burglary attempts by piercing the glass and drilling the frame, as well as by moving the hardware from the outside.
The hardware can be certified in one of the burglary resistance classes. More and more often it is a condition of home and property insurance.
Certified fittings differ from ordinary fittings:
- more anti-theft catches in a fixed arrangement
- anti-drill plate mounted on the gearbox cassette (i.e. the hardware element on which the handle is then mounted)
- using a special handle with a key
Marking the hardware with WK1 or RC1 N class requires that, depending on the size of the window, it must be equipped with two, three or four anti-theft points. In the case of WK2, RC2 or RC2N class, all the catches must be anti-burglary, and their number and arrangement are precisely defined for the given leaf size.
We offer 1- or 2-sided veneering, as well as the Bi-Color option, i.e. veneering in two different colors at the same time from over several dozen veneers.

















